4thtry's 2026 InDIYana theme project

Forgot I had this, but the post rang the memory bell. WT2 ha-ha.

Back when I built the 10” RSS HF Tube subs, they were aperiodically loaded. What happened was the impedance peak at resonance lowered and spread out. It lowers the apparent Qcb.

Enclosures were app. 1.5 cubic feet so final Q was approaching transient perfect. These really loaded a room well - gentle HF roll-off helped with the 60/80Hz etc. boom, while they made nice bass.

OMG - 2007! Where did the time go??? :smile:

Robert, are you able to describe how you loaded the tube? Assuming it wasn’t just a aperiodic vent?

Bill, I think you can edit the thread title…if so, I’d recommend renaming it “4thtry’s 2026 InDIYana theme project”

Lol. Acoustic Foam on the walls, Acousta-Stuf, and Fiberglass. Acousta-Stuf is used to keep the glass out of the driver motor.

Cheers / Robert

Done. Thanks for the tip. Didn’t know I could do that. I added some tags too.

That is the plan. First layer will be Acousta-Stuf to keep fiberglass off the delicate planar/ribbon element.

Sounds good. Bill, I think you would be taking measurements after every iteration of stuffing mix. If you can post your findings and highlight what you are looking for would be great!

If your goal is to decrease internal reflections look for materials with high NRC ratings. Fiberglass and acoustic foam have lower NRC ratings than products like PE’s Sonic Barrier Acousta-Blue and rock wool. None of them seem to be very effective at low frequencies and NRC measurements typically only go to 4k.

1 Like

Would this be similar to ultra-touch? I still have more than half a bag of ultra-touch denim insulation left. Those are 3” thick I think. And yes these would have been part of the sandwich material.

Though I like PE’s 1” with vinyl stick on stuff for putting on the sidewall.

UltraTouch is much better. It actually works down low.

UltraTouch data sheet.pdf (1.4 MB)

It’s available in pallet quantities from a place in Chaska, MN.

https://www.acousticalsurfaces.com/wall_insulation/ultratouch.htm

2 Likes

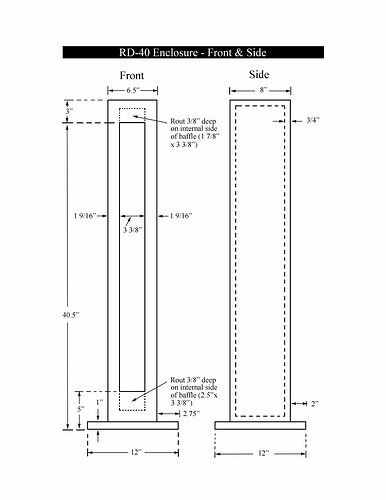
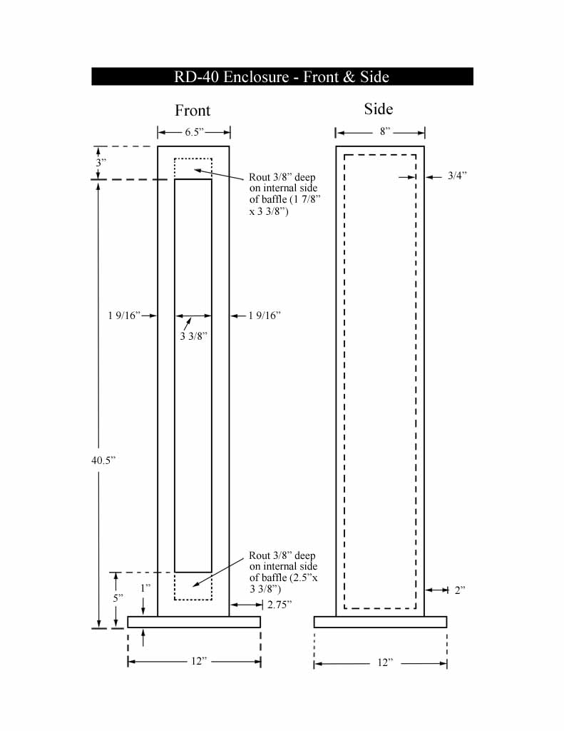
Will do. For your reference, here are a couple drawings showing the dimensions of my RD40 enclosure. The internal volume is 0.75 cubic feet. The external width is 6.5 inches and the tweeter will be mounted in the center, directly in front of the RD40. Most other builders would probably build a much wider baffle and then put the tweeter in the middle on one side or the other. What dimensions, volume, and baffle width will you be using for your RD40 project? What tweeter will you be using? Where will you be mounting your tweeter?


1 Like

Thanks bill for the detailed drawings and dimensions - This would help with making the box. I haven’t really thought much about this. I was going to try it out as a two with a 10” sub crossed over actively at 150-200 hz and tailor the system frequency response actively, just to try out and see how it sounds.

The RD40’s do roll off early on the high end, but wanted to see if it can still sound reasonably good on it’s own. The next option would have been to go with a tweeter on the side on a wide baffle and finally maybe a short line array on the side. Againg, don’t know how any of these will sound or how successful it would.

Looking forward to your impressions of putting the tweeter in the middle and blocking of the top and bottom for a MTM type.

In order to mount the Neo3 clone tweeter on top of the RD40, I needed to find some way to get the 16 ga hookup wire past the RD40 flange. I didn’t want to drill a hole in the RD40’s metal flange, so I used my router to cut some 1/2" wide slots along the edge of my tweeter baffle adapter plates and the RD40 enclosures. This gives me just enough clearance to snake the 16 ga wire around the RD40 flange.

Before making the cuts, I put masking tape around the notch area to prevent damaging the finish with my router:

I also routed a matching slot on the bottom side of my adapter plate:

When the adapter plate is placed into position, the two slots line up perfectly:

I also drilled four countersunk mounting holes in my adapter plate to accept #8 x 1-1/2" square head pocket screws. I ground off the tips of the pockets screws to prevent the screws from hitting the RD40’s metal flange when they are fully seated.

The adapter plates are now ready for bondo, sanding, and painting. Think I will paint them semi-gloss black to match the drivers.

4 Likes

That looks great Bill and the wires are completely hidden!

Thanks, Ani. If this works, it should give me the equivalent of a Neo3 flanked by two Neo10’s in an MTM configuration.

The tweeter will be about 3/4" closer to the listening position than the mids, but I should be able to compensate for this in the xover.

The RD 40’s are 35 inches long and will have vertical lobing issues at my targeted crossover point of 2500Hz. To deal with this, I will be attemping to block off the sound coming from the top and bottom five inches of the RD40’s. I’m thinking of using garage door threshold rubber seal material. It should fit nicely into the triangular openings at the front of the ribbons. As long as I do not create cavity resonances or physically touch the ribbon elements with the foam rubber, I should be OK.

1 Like

I am rear mounting the RD40 drivers in my tall enclosures and there is an important alignment detail that I need to mention. The RD40’s mount from the rear via eight evenly spaced holes running from the top to the bottom of the driver. But the mounting flange is not the same thickness along it’s entire length. The flange near the bottom and top 4 mounting holes measures 0.170 inches thick. The flange for the inner 4 mounting holes, however, measures 0.234 inches thick (see pics). The reason for this difference is that the ribbon waveguide adds an additional 0.06" thickness to the flange, but it is only 35.5 inches long and does not cover the entire 40 inch length of the driver.


Also, the RD40 is designed to flush mount from the rear into a 7/8" thick baffle. Since I am using a 3/4" thick baffle, I needed to add two 0.06" thick washers underneath each of the inner 4 mounting holes. Also, I added three 0.06" thick washers underneath each of the outer 4 mounting holes (see pics). All these washers help to flush mount the driver waveguide, but they also compensate for the variation in flange thickness of the inner and outer mounting holes. If I did not compensate for the thickness variation by added an extra 0.06" washer to the four outer mounting holes, the long driver would actually bend slightly along its length as I tightened the screws.


That’s interesting, Bill. How are you sealing the driver with the washers - speaker gasket strip?

I’m using flexible rope caulk type material. After the driver is installed, I fill the outer gap from the rear with the rope, pusing it in place with my fingers. Not the best solution, but it works. To remove the driver (if I need to), I simply remove the 8 screws and then reach around and push the driver up and out from the front side to break the seal.

I should also mention, I ground the tips off the eight mounting screws so that they do not go in further than 3/4." Otherwise, they might poke through the front of the baffle and ruin the finish. The baffle is only 3/4" thick.

2 Likes

Giving the tweeter adapter flanges the bondo treatment. I bolted two 3/4" thick blocks of particle board to the bottom of each adapter to make it easier to apply the bondo with a putty knife and then block sand them smooth for painting.

2 Likes

Bill, do you have the brand or a link to the product you are using? Does it stink and how long is the owrking time/ drying time to sand? I use dolphin 1k acrylic putty - pretty good frr pin holes and small fills and dries almost intantly, no stink, but not really for for spreading with a putty knife. Looking for something that can work on larger surface and has bit of working time to spread thin and evenly.